首页 产业资讯 产业园 写字楼 厂房 仓库 土地 政府招商
主页 > 厂房 > >北京房山大兴亦庄单层|联排厂房近高速

北京房山大兴亦庄单层|联排厂房近高速项目编号:更新时间:2022-04-18 09:26

均价:4500元/平米
  • 物业类型:
  • 面积:3291平米
  • 地址:海淀涞水县经济开发区北区G5京昆高速涞水新城出口往北保野公路2公里处
17330250108石女士

联系我时,说是在商办空间网上看到的,谢谢!

预约看房
姓名:
电话:
预约房产:
提交时间: " type="text" id="shijian" style="width:100px" class="intxt" />
  • 项目详情
开发商:隆基泰和集团(全国500强、民营企业100强、产业运营商10强)大园区开发有保障;
隆基泰和招商部直售,无中介;
项目位置:涞水开发区北区京昆高速涞水新城出口保野公里往北2公里处(紧邻央企中电科电子科技园)
项目名称:涞水和谷智能科技产业园
园区距房山区20KM、距大兴机场60KM、距雄安新区55KM;
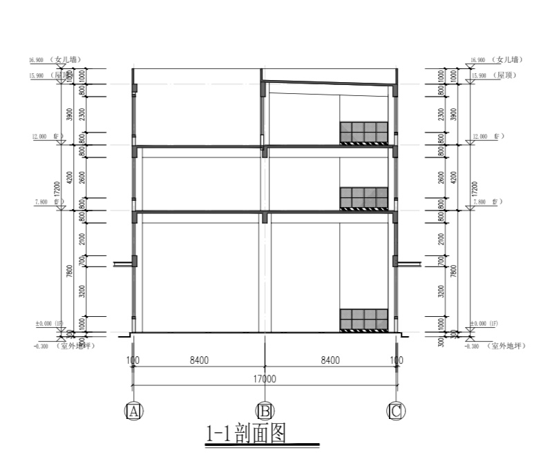
园区状况:总占地500亩。1200-3000平单层12米火车头厂房;900-3300平两层半独栋厂房(7.8米、4.2米、3.9米)赠送3层一半面积;
付款方式:一次性、分期、贷款(首付40%,贷款60%)
交房时间:2022年10月